WUPPERTAL CAMPUS HASPEL A
Nichtoffener Realisierungswettbewerb
Auslober Bau- und Liegenschaftsbetrieb NRW
November 2021
2. Rundgang
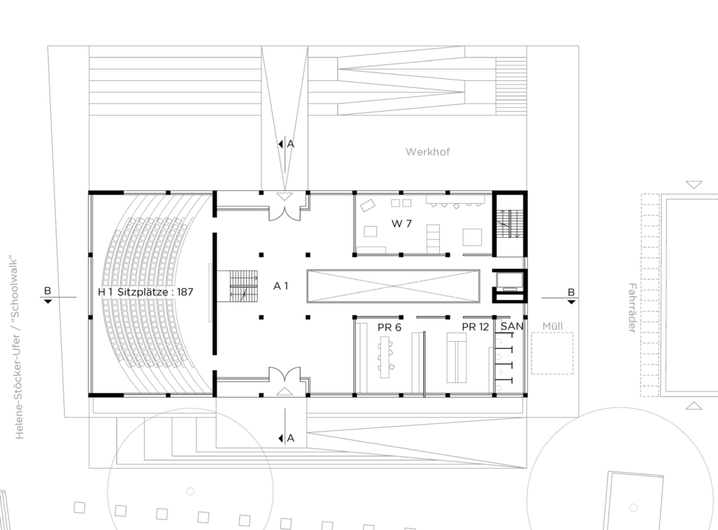
Nach Abriss des Gebäudes HA schlagen wir einen fünfgeschossigen Neubau an der südwestlichen Grenze des Wettbewerbsgebietes vor. Der vorhandene Platz mit Zugang zu Berufskolleg und Schoolwalk am Helene-Stöcker-Ufer wird dadurch als öffentlicher städtischer Ort gestärkt. Durch die Neuordnung entsteht im Zusammenspiel von Bestand und Neubau ein räumlich klar gefasster grüner Campus. Die Zugänge des Neubaus als auch des Bestandsgebäudes HB werden sowohl zum Platz als auch zum Campus orientiert. Zwischen den Gebäuden und entlang der Wupper entstehen grüne Durchgänge zum Campus. Ein großzügiger grüner Außenraum mit hoher Aufenthaltsqualität bildet den neuen Campus, auf dem unterschiedliche Aktivitäten wie Treffen, Sport oder Veranstaltungen möglich sind. Der Campus orientiert sich stadträumlich zur Wupper mit Hochbahn und dem gegenüberliegenden Hang. Ein Holzdeck am Ufer der Wupper lädt zum Verweilen und Lernen am Wasser ein.
Neubau HA
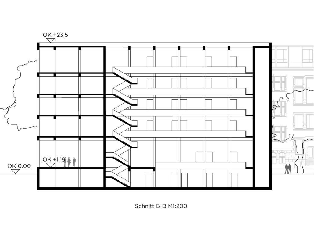
Der Neubau Haspel A baut auf einem klaren Raster auf und erlaubt somit flexible Gestaltung von Grundrissen und einer Zonierung entlang der Außenfassade mit natürlicher Belichtung für alle Räume. Die klar strukturierte Fassade hat einen hohem Glasanteil mit außenliegendem Sonnenschutz. Eingänge vom Platz und vom Campus leiten in ein Foyer mit Ausstellungsbereich. Eine offene Halle über die gesamte Höhe des Gebäudes bietet einen räumlichen Bezug in alle Etagen und Bereiche des Gebäudes. Im Souterrain ist eine weitere große zusammenhängende Ausstellungsfläche mit Bezug über die Galerien in alle Geschosse. Auf allen Etagen gibt es im Bereich der Haupttreppe ruhige frei zugängliche Lern-, Aufenthalts- und/oder Ausstellungsflächen. Studienarbeiten können im gesamten Gebäude gezeigt werden, die Galeriebereiche eignen sich auch für Ausstellungszwecke.
Der Baustoff Holz bleibt in allen tragenden Teilen sichtbar. Zur Kompensation für den Holzbau und die offene Halle mit einem Rettungsweg wird eine Brandmeldeanlage und eine automatische Löschanlage vorgesehen.
