NEUBAU FEUERWEHRGERÄTEHAUS OCKSTADT
Nichtoffener Realisierungswettbewerb
Auslober*in Magistrat der Kreisstadt Friedberg (Hessen)
Anerkennung
Mai 2024
Städtebauliche Einbindung
Das Feuerwehrgerätehaus ist zwischen der Friedberger Straße im Süden, dem ausbaufähigen Wirtschaftsweg im Norden, einem Baufachmarkt im Osten und den Schrebergärten im Westen platziert.
Das rechteckige Gebäude ist parallel zur Friedberger Straße ausgerichtet. Durch die Positionierung des Gebäudes auf dem Grundstück entsteht vor der Fahrzeughalle eine großzügige Aufstell- und Übungsfläche. Hinter dem Gebäude sind die Flächen für PKW-Stellplätze und ein Trainingsplatz angeordnet. Es ist eine deutliche Trennung zwischen Alarmverkehr im vorderen Teil des Grundstücks und dem PKW-Verkehr im hinteren Bereich geschaffen. Eine ebenfalls klare Differenzierung zwischen der PKW-Zufahrt im westlichen Teil und der Alarmausfahrt im östlichen Teil des Grundstücks ermöglicht eine reibungslose Alarmausfahrt in Richtung Friedberg Kernstadt und verhindert somit Überschneidungen auf dem Grundstück und Konflikte mit dem Kreuzungsverkehr.
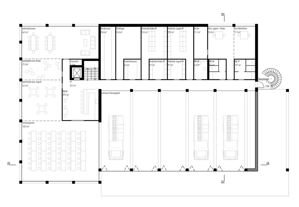
Die zentrale Fahrzeughalle mit Pultdach bildet das Herzstück des Gebäudes. Um diese Halle herum erstreckt sich eine zweigeschossige Bebauung. In diesem L-förmigen Gebäude sind die Funktionen der Einsatzabwicklung mit Funkzentrale und Umkleiden im EG untergebracht. Schulung, Aufenthaltsräume, Umkleiden der Jugend- und Kinderfeuerwehr und Büros befinden sich im 1.OG. Die Fassade der Fahrzeughalle mit transparenten Falttoren und die Glasfassaden des Funkraums und des Foyers mit historischen Feuerwehrgeräten repräsentieren die Aufgaben der Feuerwehr Ockstadt deutlich sichtbar und transparent nach außen.
Entwurfskonzept
Die Fahrzeughalle nimmt einen zentralen Platz ein. Der Funkraum, der direkt an die Fahrzeughalle angrenzt, bietet direkte Einblicke in die Fahrzeughalle, den Vorplatz und die Übungsfläche. Die Umkleideräume der Einsatzkräfte mit separatem Alarmeingang sind direkt an die Fahrzeughalle angeschlossen. Werkstatt und Lagerraum haben ebenfalls einen direkten Bezug zur Fahrzeughalle. Der Galeriesteg im 1. Obergeschoss ermöglicht einen Blick nach unten in die Fahrzeughalle, was die Kommunikation und den Bezug zwischen der Kinder- und Jugendfeuerwehr auf der oberen Ebene und den Alarmeinsätzen im Erdgeschoss stärkt.
Der Alarmeingang zu den Umkleiden erfolgt im nördlichen Teil des Gebäudes. So können die Einsatzkräfte direkt von den PKW-Stellplätzen aus schnell dorthin gelangen. Vom Alarmeingang aus gelangt man zu den Umkleidens und über kurze, kreuzungsfreie Laufwege zur Fahrzeughalle. Die Schleuse zwischen den Umkleideräumen enthält den Dekontaminierungsraum und sorgt nach dem Einsatz für eine effektive Trennung von verschmutzter Einsatzkleidung und sauberer Zivilkleidung.
Der Haupteingang befindet sich im westlichen Teil des Gebäudes. Von dort aus gelangt man ins Foyer, in dem repräsentativ die historischen Feuerwehrgerätschaften ausgestellt sind. Die Treppe führt zum ersten Stock, der Schulungs- und Aufenthaltsräume, Büros sowie Umkleideräume für die Jugend- und Kinderfeuerwehr beherbergt. Der großzügige Schulungsraum ist zur Friedberger Straße hin orientiert und bietet einen direkten Blickbezug auf die Übungsfläche und Vorplatz, sowie in die Fahrzeughalle hinein. Der Schulungsraum, sowie die Aufenthaltsräume der Einsatzkräfte, der Jugend- und Kinderfeuerwehr sind durch eine Faltwand voneinander getrennt und können bei Bedarf zu einem großen Raum verbunden werden.
Die großzügige Übungsfläche liegt vor dem Gebäude und ist zwischen Vorplatz und PKW-Einfahrt platziert, so dass sie die Verkehrswege nicht verhindert. Der Zugang zur Dach-Übungsfläche ist über eine Anleiterung von der Hauptübungsfläche aus möglich. Die restliche Dachfläche ist mit PV-Modulen ausgestattet und dient als Retentionsdach mit extensiver Begrünung. Lichtkuppen über dem Galeriesteg sorgen für natürliche Beleuchtung.
Die Anlieferung ist neben dem Eingangsbereich vorgesehen und erfolgt durch den Lagerraum, der mit der Lagerfläche der Fahrzeughalle direkt verbunden ist.
Die Planung berücksichtigt auch eine potenzielle Erweiterung für einen 6. Stellplatz, indem das Pultdach so konzipiert wurde, dass es über die Erweiterung reicht. Diese Fläche kann vorerst als Lagerfläche dienen und bei Bedarf als zusätzlicher Stellplatz genutzt werden.
