KOLONIESTRASSE APARTMENTS FÜR STUDIERENDE
Koloniestraße Apartments für Studierende
Generalplanung LpH 1-4, anteilig 5
In der Koloniestraße 11 – 12 in Berlin – Wedding standen 268 Studentenappartements für einen Münchner. Die 19 bis zu 56 m² großen und zum Teil barrierefreien Ein- und Zwei-Personen-Apartments sollen später einzeln verkauft werden.
Das Studentenwohnheim in der Koloniestraße 11-12 in Berlin-Wedding besteht aus drei 6-geschossigen Neubauten mit Staffelgeschossen. Bauteil 01 schließt die Lücke zwischen den Bestandsgebäuden entlang der Koloniestraße. Bauteil 02 und 03 liegen im mittleren Teil des Grundstücks. Über Durchfahrten in allen Bauteilen wird auch die rückwärtige Bestandshalle als 4. Bauteil erschlossen.
Der Haupteingang befindet sich an der Koloniestraße und führt in einen 4 m hohen EG-Bereich, mit den gemeinschaftlichen Nutzungen Lobby, Gemeinschaftsküche, Fitnessraum, Lern- und Seminarraum sowie einem öffentlichen Café. Ab dem 1.OG aufwärts sind die Apartments angeordnet. In Bauteil 02 und 03 befinden sich ausschließlich Apartments. Für die größtmögliche Privatheit auch im Erdgeschoss wurden die Bauteile 02 und 03 mit einem Hochparterre geplant. Zusätzlich wird ein zwei Meter breites Pflanzband um jedes Gebäude angelegt.
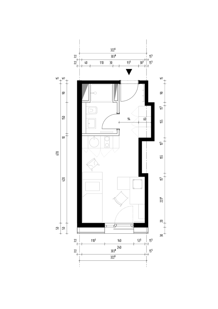
Die Apartments werden über einen Mittelflur erschlossen und sind bei einer Gebäudetiefe von 15,80 m jeweils nach Osten bzw. Westen orientiert. Im Staffelgeschoss sind die Apartments eingerückt und die Erschließung erfolgt über den überdachten Außenbereich. Die Gebäude sind flächeneffizient geplant – Bauteil 02 und 03 verfügen über je ein Treppenhaus, das als Sicherheitstreppenhaus ausgeführt wird. Die Apartments sind mit 19 qm Wohnfläche inklusive Küche und Bad ein Minimalwohnraum, der mit den bodentiefen Fenstern einen großzügigen Bezug in den Außenraum erhält.
Die Apartments sind standardisiert und inklusive Möblierung geplant. Das Achsraster strukturiert die Gebäude, auf jeder zweiten Achse befindet sich eine tragende Wand. Die nichttragenden Wände werden in Trockenbauweise entsprechend der Brand- und Schallschutzanforderungen als Apartmenttrennwände erstellt. Die Treppenhauswände sowie Teile der Außenwände gewährleisten die notwendige statische Aussteifung des Neubaus.
Im Kellergeschoss ist für jedes Apartment ein Absteller vorgesehen sowie Räume mit Waschmaschinen für die Gemeinschaft.
Die Gebäude erreichen KfW 55 – Effizienzhaus mit einer hochwärmedämmenden Hülle und einer Holzpelletheizung. Die Zuluft erfolgt über in den Fensterleibungen angeordnete Außenluftdurchlasselemente, die Abluft wird über die Bäder geführt. Im Sinne eines schonenden Ressourcenverbrauchs wird das Regenwasser auf dem Grundstück versickert und entlastet so die öffentlichen Abwasseranlagen.
