HALLE BÖLLBERGER WEG 3. BAUABSCHNITT
Nichtoffener Realisierungswettbewerb
Ausloberin Gesellschaft für Wohn- und Gewerbeimmobilien Halle-Neustadt mbH
Februar 2020
2. Rundgang
Wohnen Am Mühlenhof
Städtebau / Grundstück / Baufeld
Das Gelände ist durch den Standort als vormaliges Mühlengewerbe direkt an die Saale angebunden, im südlichen Stadtgebiet von Halle verortet und liegt in Form eines dritten Bauabschnittes im südwestlichen Teil des 4.7 ha großen Entwicklungsgebiets der GWG.
Der Entwurf lässt die, zwischen 1870 und 1880 entstandenen Gebäude ihre ursprünglichen Volumina, auf Grundlage der Bebauungspläne auf dem 8650 m2 großen Grundstück wieder annehmen und den vorhergehenden Städtebau im Zusammenspiel der Gebäude erneut nachbilden. In dessen Rahmen wurden entstandene, architektonisch zu entwerfende Spielräume genutzt und in das Gesamtkonzept mit einbezogen.
Der Mühlenhof bekommt aufgrund der Durchwegung des Radweges einen vorwiegend öffentlichen Charakter und bleibt unter Denkmalschutz als nutzbare Freifläche weitgehend unberührt. Somit bildet die rückwärtige Außenanlage auf dem Grund des ehemaligen Gartens eine ruhigere Zone.
Architektur / Konzept
Der ehemalige Speicherbau wird in seinem Bestand auf die beiden unteren Geschosse reduziert und durch einen viergeschossigen Wohnungsneubau, welcher im Wesentlichen die ursprüngliche Gebäudekubatur nachzeichnet, ergänzt. Ein Strukturwechsel durch eine Änderung im Verband der hellen Backsteinfassade im oberen Bereich markiert die genaue Höhe des ursprünglichen gewerblich genutzten Speichers. Um ein harmonisches Gesamtbild zu schaffen, wird die Neuinterpretation der Fassadenöffnungen mit gewölbtem Sturz und Formaten, welche sich für den Wohnungsbau eignen, im Fassadenraster des Bestandes weitergeführt.
Um eine nicht zu große Diskrepanz mit der Kubatur des Bestandes herbeizuführen, ist die Wohnraumfläche, durch eine punktförmige Bebauung des Daches erweitert. Es entstehen besondere Dachgeschosswohnungen mit großzügigen privaten Freiflächen.
Die Fabrikantenvilla mit zugehörigem Kontorhaus bleibt durch die Sanierung der Fassade in ihrem Erscheinungsbild erhalten. Die nicht mehr zeitgenössischen Grundrissstrukturen des 19. Jahrhunderts, welche mit modernem Wohnungsbau im Kontrast stehen, werden unter weitgehender Berücksichtigung des Bestands neu interpretiert. Im Erdgeschoss beider baulich miteinander verbundenen Gebäude sind gewerbliche Nutzungen geplant.
Der viergeschossige Wohnungsneubau befindet sich an der Stelle der ehemaligen Beamtenwohnhäuser und orientiert sich an dessen, zum Hof ausgerichteter Bestandsfassade, welche im Entwurf zu erhalten ist.
Der Mühlenhof nimmt im Einklang mit dem Entwurf den englischen Industriecharakter des 19. Jahrhunderts auf und bildet mit den Wohnbauten aus Ziegelmauerwerk eine klare Haltung.
Aufgrund des hohen Anteils an noch bestehender, denkmalgeschützter Bausubstanz, wird mit jedem Gebäude spezifisch und individuell auf die historischen Strukturen reagiert, welche zum Mühlenhof mit den bestehenden Fassaden und den Neubauten ein schlüssiges Ensemble schaffen.
Erschließung / Details / Qualität / Adressbildung
Das Gebiet wird für den Autoverkehr bis zur Garageneinfahrt des Speichers von Nordosten erschlossen. Fußgänger und Radfahrer erschließen das Quartier sowohl im Norden und Süden über beide Enden des Mühlenhofs, als auch rückseitig über die Freiraumanlagen auf der Fläche des ehemaligen Gartens. Über diese gibt es Zuwegungen auf das Niveau des unterhalb des Gartens liegenden Hofes, als auch Zugänge zum Speichergebäude und den oberen Geschossen des Wohnhauses.
Die Haupterschließungen aller Gebäude finden vom historischen Mühlenhof statt. Es entsteht eine neue Aufenthaltsqualität und barrierefreie Vernetzung der Orte durch den ehemaligen Garten. Zwischen Mühlenhof und Garten gibt es eine klare Trennung, welche neben einem Höhenunterschied durch einen Neubau für Mieterkeller am ehemaligen Standort der Ruine zwischen Speicher und Villa und begrünten Wänden und Treppenräumen im Außenbereich verstärkt wird.
Speicher
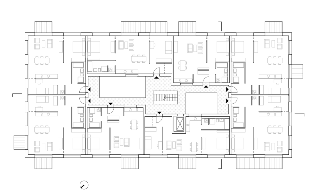
In den unteren beiden Etagen des Speichers sind Fahrrad- und PKW-Stellplätze innerhalb der bestehenden Strukturen geplant. Die PKW-Zufahrten befinden sich an den historischen Fassadenöffnungen im EG und 1.OG im Südosten und Nordwesten des Speichers. Um den Autoverkehr nicht in das Gebiet zu führen, liegen die Einfahrten dicht an der bestehenden Straße. Über eine zweigeschossige Erschließungszone innerhalb des Bestandsgemäuers, ist es möglich das Gebäude sowohl über den Haupthauseingang im Hof, als auch über den Garten zu erschließen. Die großzügige vertikale Erschließung schafft einen spannenden Raum mit Blickbezügen zum Himmel und die fördert Belichtung und Belüftung der einseitig ausgerichteten Wohnungen. Über den beiden Stellplatzebenen befindet sich die Bewegungsfläche und der untere Abschluss des Lichthofes, welcher im Außenraum, in der Gebäudemitte die Erschließung der einzelnen Wohneinheiten über eine Treppenanlage und einen Fahrstuhl möglich macht und auf allen weiteren Geschossen als Begegnungsort für die Nachbarschaft zur Verfügung steht. Die vertikale Erschließung, welche in drei Zonen verspringt findet auf dem Dach mit einer Gemeinschaftsterrasse ihren Abschluss und ermöglicht des Weiteren die Zuwegung der Wohneinheiten im oberen Geschoss auf dem Dach. Pro Regelgeschoss werden je acht Wohnungen erschlossen. Diese sind entweder zweiseitig über die Gebäudeecken nach außen orientiert oder durchgesteckt nach außen nach Westen zur Saale oder nach Osten zum Garten und mit Belichtung vom Lichthof. Mit der Fassadengliederung wird im Erscheinungsbild der Proportionen auf die historischen Abmessungen des Speichers reagiert.
Villa und Kontorgebäude
Der historische Hauseingang der Fabrikantenvilla befand sich im Südosten und war zum Garten orientiert. Aus wirtschaftlichen und ökonomischen Gründen sind neue Hauseingänge im Nordwesten vorgesehen und somit, im Sinne des Speichers und des Wohnhauses hofseitig orientiert und ausgerichtet. Der Zugang zum Kontorbau befindet sich am Treppenaufgang des ursprünglichen Treppenhauses und erschließt das Untergeschoss, eine Gewerbeeinheit im EG und eine Wohneinheit im Obergeschoss. Das bestehende Treppenhaus der Villa wird um einen Fahrstuhl erweitert und ermöglicht eine barrierefreie Erschließung aller Wohneinheiten der Villa. Für Gewerbe- und Wohngeschosse ist für beide Nutzungen das System eines Dreispänners vorgesehen.
Wohnhaus
Das Beamtenwohnhaus ist über alle Geschosse baulich mit der zum Hof ausgerichteten Bestandsfassade verbunden. Die historischen Fassadenöffnungen und die Struktur lassen auf die Wohnungsgrundrisse des neuen Wohnhauses rückschließen. Der Entwurf sieht durchgesteckte Maisonettewohnungen vor. Die Hauseingänge der einzelnen untenliegenden Wohneinheiten befinden sich im Hof und die der obenliegenden rückwärtig im Südosten an einem Laubengang im zweiten Obergeschoss. Die durchgesteckten Wohnungen verfügen jeweils über einen Kern für Erschließung und Versorgung in der Gebäudemitte.
Wirtschaftlichkeit / Ökonomie / Aspekte / Energieeffizienz
Die Ziegel-Fassaden der Wohnungsneubauten sind als hochgedämmte, zweischalige hinterlüftete Konstruktionen geplant.
Gebäudetechnik, Energieeffizienz und Nachhaltigkeit: Im Vordergrund steht zur Verringerung der Transmissionswärmeverluste, die Herstellung einer guten Gebäudehülle. Zur Reduzierung der verbleibenden Lüftungswärmeverluste und zur Verbesserung des Wohnraumklimas ist eine zentrale Lüftungsanlage mit hocheffizienter Wärmerückgewinnung für den ehemaligen Speicher vorgesehen. Die Wärmeversorgung erfolgt über eine Nahwärmeleitung. Ein notwendiger Anteil an regenerativer Wärmeenergie kann über eine solarthermische Anlage wirtschaftlich umgesetzt werden.
